Parts for G0501 14" Sliding Table Saw

Parts Diagrams for G0501 - 14" Sliding Table Saw

IMPORTANT

Parts may have multiple versions that have changed over time. This will be indicated by V1, V2, V3, etc. in the parts description, followed by the version month and year that it was first used. Example: V2.01.17 indicates version 2 of a part went into use in January 2017. Please reference the manufacture date on the ID Label for your machine to ensure you are selecting the correct part when multiple versions are indicated.

If you cannot locate your part below, please contact our tech support department at techsupport@grizzly.com or 570-546-9663.

Please note: All parts ship out of our Springfield, Missouri facility.

Parts List for Parts for G0501 14" Sliding Table Saw

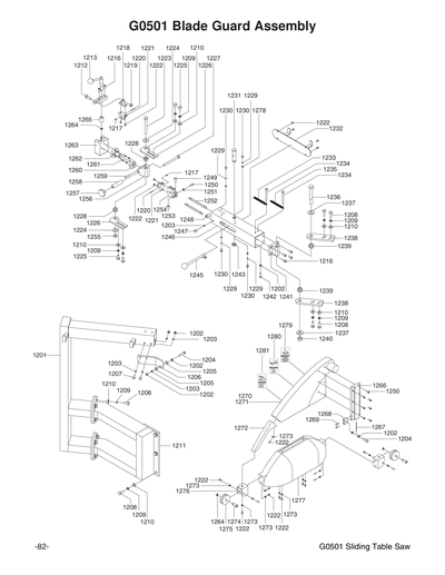
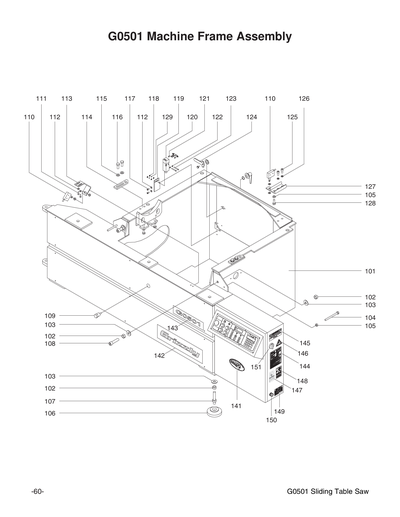
101
MACHINE FRAME
Item is no longer available
Price
N/A
102
Now: PN13M
HEX NUT M16-2
Price
N/A
103
Now: PW08M
FLAT WASHER 16MM
Price
N/A
104
HEX BOLT M10-1.5 X 120
Price
N/A
105
Now: PN02M
HEX NUT M10-1.5
Price
N/A
106
PRESSURE PIECE
$16.35
Enter quantity between 1 and 99
107
LEVELING SHOULDER STUD
Item is no longer available
Price
N/A
108
CAP SCREW M16-2 X 65
Price
N/A
109
MAGNETIC NUT M8-1.25
Item is no longer available
Price
N/A
110
LIMIT SWITCH
$35.65
Enter quantity between 1 and 99
111
CAP SCREW M6-1 X 16
Price
N/A
112
Now: PW03M
FLAT WASHER 6MM
Price
N/A
113
PLATE
Item is no longer available
Price
N/A
114
FIXED POSITION IRON
Item is no longer available
Price
N/A
115
Now: PW06M
FLAT WASHER 12MM
Price
N/A
116
Now: PB27M
HEX BOLT M12-1.75 X 30
Price
N/A
117
CAP SCREW M6-1 X 10
Price
N/A
118
Now: PN04M
HEX NUT M4-.7
Price
N/A
121
CAP SCREW M5-.8 X 10
Price
N/A
122
Now: PW05M
FLAT WASHER 4MM
Price
N/A
123
CAP SCREW M4-.7 X 40
Price
N/A
124
HANDLE
Item is no longer available
Price
N/A
125
CAP SCREW M10-1.5 X 20
Price
N/A
126
LOCK WASHER 10MM
Price
N/A
127
U-PROFILE
Item is no longer available
Price
N/A
128
Now: PB01M
HEX BOLT M10-1.5 X 30
Price
N/A
129
LOCK WASHER 4MM
Price
N/A
131
GEAR
$46.20
Enter quantity between 1 and 99
132
SET SCREW M6-1 X 6
Price
N/A
133
CAP SCREW M4-.7 X 12
Price
N/A
134
BASE PLATE
Item is no longer available
Price
N/A
135
Now: PW03M
FLAT WASHER 6MM
Price
N/A
136
LOCK WASHER 6MM
Price
N/A
137
CAP SCREW M6-1 X 16
Price
N/A
138
*DISCD*ENCODER
Item is no longer available
Price
N/A
139
COVER
Item is no longer available
Price
N/A
140
CAP SCREW M6-1 X 12
Price
N/A
141
Now: G8589
Nameplate - Large
Price
N/A
142
GRIZZLY LOGO STRIP
Item is no longer available
Price
N/A
143
MODEL NUMBER LABEL
Item is no longer available
Price
N/A
144
MACHINE ID LABEL
Item is no longer available
Price
N/A
145
NOTICE LABEL
Item is no longer available
Price
N/A
146
ELECTRICITY 1.4W X 1.2H
Price
N/A
147
READ MANUAL 2W X 3.3H V2.07.05
Price
N/A
148
KICKBACK HAZARD LABEL
Item is no longer available
Price
N/A
149
PREWIRED 220V 3.3W X 2.2H
Price
N/A
150
STRAIN RELIEF
Item is no longer available
Price
N/A
151
MAIN POWER SWITCH
$43.50
Enter quantity between 1 and 99
201
MAGNETIC SET SCREW M20-2.5 X 20
Item is no longer available
Price
N/A
202
CHIP CHANNELE
Item is no longer available
Price
N/A
203
Now: PB03M
HEX BOLT M8-1.25 X 16
Price
N/A
204
LOCK WASHER 8MM
Price
N/A
205
Now: PW01M
FLAT WASHER 8MM
Price
N/A
206
LEVER
Item is no longer available
Price
N/A
207
CAP SCREW M8-1.25 X 16
Price
N/A
208
CAM
Item is no longer available
Price
N/A
209
BALL BEARING 6202ZZ
Price
N/A
210
Now: PR05M
EXT RETAINING RING 15MM
Price
N/A
211
Now: PB20M
HEX BOLT M8-1.25 X 35
Price
N/A
212
MOTOR ROCKER
Item is no longer available
Price
N/A
213
CAP SCREW M4-.7 X 40
Price
N/A
214
Now: PW05M
FLAT WASHER 4MM
Price
N/A
216
CAP SCREW M6-1 X 12
Price
N/A
217
LOCK WASHER 4MM
Price
N/A
219
LOCK WASHER 4MM
Price
N/A
220
SET SCREW M8-1.25 X 35
Price
N/A
221
Now: PN03M
HEX NUT M8-1.25
Price
N/A
222
CAP SCREW M8-1.25 X 25
Price
N/A
223
STOP
Item is no longer available
Price
N/A
224
LOCK WASHER 12MM
Price
N/A
225
CAP SCREW M12-1.75 X 40
Price
N/A
226
ARC GEAR
Item is no longer available
Price
N/A
227
STRAIGHT PIN M8 X 30
Item is no longer available
Price
N/A
228
SEGMENT
Item is no longer available
Price
N/A
229
Now: PB15M
HEX BOLT M8-1.25 X 40
Price
N/A
230
SWIVEL LEVERE
Item is no longer available
Price
N/A
231
CLAMPING PIN 10MM
Item is no longer available
Price
N/A
232
LOCK WASHER 10MM
Price
N/A
233
CAP SCREW M10-1.5 X 45
Price
N/A
234
CAP SCREW M8-1.25 X 35
Price
N/A
235
COVER PLATE
Item is no longer available
Price
N/A
236
Now: PN04M
HEX NUT M4-.7
Price
N/A
237
CAP SCREW M5-.8 X 10
Price
N/A
238
CHIP FUNNEL
Item is no longer available
Price
N/A
239
CAP SCREW M6-1 X 16
Price
N/A
240
Now: PN01M
HEX NUT M6-1
Price
N/A
241
MAIN DIRECTION LABEL
Item is no longer available
Price
N/A
242
SCORING DIRECTION LABEL
Item is no longer available
Price
N/A
243
DANGER GUARD LABEL
Item is no longer available
Price
N/A
301
CAP SCREW M10-1.5 X 25
Price
N/A
302
LOCK WASHER 10MM
Price
N/A
303
MOUNTING
Item is no longer available
Price
N/A
304
Now: PW10M
FLAT WASHER 14MM
Price
N/A
305
Now: PN09M
HEX NUT M12-1.75
Price
N/A
306
*DISCD*LINEAR ACTUATOR 150MM STROKE
Item is no longer available
Price
N/A
306-1
LINEAR ACTUATOR SENSOR 150MM 2PC
Item is no longer available
Price
N/A
307
MOUNTING
Item is no longer available
Price
N/A
308
Now: PW06M
FLAT WASHER 12MM
Price
N/A
309
LOCK WASHER 12MM
Price
N/A
310
CAP SCREW M12-1.75 X 45
Price
N/A
311
Now: PR09M
EXT RETAINING RING 20MM
Price
N/A
312
Y-PROFILE MOUNTING
Item is no longer available
Price
N/A
313
CLEVIS BOLT M12-1.75
Item is no longer available
Price
N/A
314
GROOVED CLEVIS PIN
Item is no longer available
Price
N/A
315
LINEAR ACTUATOR HEX BOLT M12-1.75 X 26
$12.65
Enter quantity between 1 and 99
316
BUSHING
Item is no longer available
Price
N/A
317
Now: PN09M
HEX NUT M12-1.75
Price
N/A
318
LINEAR ACTUATOR 350MM STROKE
$2,608.20
Enter quantity between 1 and 99
319
SET SCREW M6-1 X 6
Price
N/A
320
Now: PR03M
EXT RETAINING RING 12MM
Price
N/A
321
CAP SCREW M8-1.25 X 25
Price
N/A
322
LOCK WASHER 8MM
Price
N/A
323
Now: PW01M
FLAT WASHER 8MM
Price
N/A
324
U-PROFILE
Item is no longer available
Price
N/A
401
CAP SCREW M10-1.5 X 25
Price
N/A
402
LOCK WASHER 10MM
Price
N/A
403
BRACKET
Item is no longer available
Price
N/A
404
SAW ROCKET
Item is no longer available
Price
N/A
405
EYE BOLT M12-1.75 X 33
$26.20
Enter quantity between 1 and 99
406
Now: PN09M
HEX NUT M12-1.75
Price
N/A
407
TUBE
$39.85
Enter quantity between 1 and 99
408
STEP SWITCH
$86.00
Enter quantity between 1 and 99
409
Now: PB70M
HEX BOLT M10-1.5 X 16
Price
N/A
410
Now: PW04M
FLAT WASHER 10MM
Price
N/A
411
BRACKET
Item is no longer available
Price
N/A
412
SET SCREW M6-1 X 10
Price
N/A
413
ROTATIONAL SPEED LOCK
Item is no longer available
Price
N/A
414
CAP SCREW M4-.7 X 12
Price
N/A
415
Now: PB02M
HEX BOLT M6-1 X 12
Price
N/A
416
FLAT SPRING 14 X 25 X 2T
Item is no longer available
Price
N/A
417
SET SCREW M20-2 X 65
Price
N/A
418
Now: PN28M
HEX NUT M20-2.5
Price
N/A
419
INT TOOTH WASHER 20MM
Price
N/A
422
WOODEN WEDGE
Item is no longer available
Price
N/A
423
Now: PB32M
HEX BOLT M10-1.5 X 25
Price
N/A
424
Now: PB14M
HEX BOLT M10-1.5 X 35
Price
N/A
425
Now: PN02M
HEX NUT M10-1.5
Price
N/A
426
FLAT SPRING 50 X 310 X 3T
Item is no longer available
Price
N/A
427
LOCK WASHER 8MM
Price
N/A
428
CAP SCREW M8-1.25 X 25
Price
N/A
429
SET PILLAR
Item is no longer available
Price
N/A
430
ADJUSTING LEVEL
$35.65
Enter quantity between 1 and 99
431
ROUND KNOB FEMALE
Item is no longer available
Price
N/A
432
Now: PB31M
HEX BOLT M10-1.5 X 40
Price
N/A
434
SPACER
Item is no longer available
Price
N/A
435
SET SCREW M8-1.25 X 10
Price
N/A
436
SPACER
Item is no longer available
Price
N/A
437
SHAFT
Item is no longer available
Price
N/A
438
V-BELT XPA832 POLY-FLEX
$50.75
Enter quantity between 1 and 99
438A
V-BELT 11M850 POLY-FLEX
Price
N/A
438V2
V-BELT 11M850 POLY-FLEX
$71.90
Enter quantity between 1 and 99
439
SPACER
$33.35
Enter quantity between 1 and 99
440
PULLEY XPA-TYPE
Item is no longer available
Price
N/A
440V2
PULLEY 11M-TYPE
Item is no longer available
Price
N/A
441
Now: PK79M
KEY 10 X 8 X 55
Price
N/A
442
SPACER 10HP
$65.30
Enter quantity between 1 and 99
443
HEX BOLT M10-1.5 X 45
Price
N/A
444
MAIN MOTOR 10HP 220V/440V 3-PH V1
$1,929.60
Enter quantity between 1 and 99
444V2
MOTOR W/PLY 10HP 220V/440V 3-PH V2.10.06
$1,873.35
Enter quantity between 1 and 99
445
MOTOR PLATE
Item is no longer available
Price
N/A
446
O-RING 11.8 X 2.4 P12 
Price
N/A
447
EYE BOLT M12-1.75 X 45
$24.15
Enter quantity between 1 and 99
448
Now: PN02M
HEX NUT M10-1.5
Price
N/A
449
Now: PN09M
HEX NUT M12-1.75
Price
N/A
450
Now: PB35M
HEX BOLT M12-1.75 X 40
Price
N/A
451
LOCK WASHER 12MM
Price
N/A
452
Now: PW06M
FLAT WASHER 12MM
Price
N/A
453
RIVING KNIFE 14" V1.07.03
Item is no longer available
Price
N/A
453A
RIVING KNIFE 12" FLAT HEAD V2.04.07
$79.70
Enter quantity between 1 and 99
454
SHOULDER STUD M8-1.25 X 27
$20.70
Enter quantity between 1 and 99
455
PRESSURE PLATE
Item is no longer available
Price
N/A
456
ADJUST SCREW M8-1.25 X 27
$49.20
Enter quantity between 1 and 99
457
CLAMPING PLATE
Item is no longer available
Price
N/A
458
CAP SCREW M8-1.25 X 15
Price
N/A
459
RETAINING PLATE
Item is no longer available
Price
N/A
460
FLAT STEEL STRIP
$24.15
Enter quantity between 1 and 99
461
GUIDE PLATE
$72.45
Enter quantity between 1 and 99
462
FLAT HD SCR M10-1.5 X 20
Price
N/A
463
*DISCD*ARBOR LOCKING BOLT 3/8-16 X 20
Item is no longer available
Price
N/A
464
SAW SHAFT/ARBOR
Item is no longer available
Price
N/A
465
Now: PK80M
KEY 10 X 8 X 40
Price
N/A
466
BALL BEARING 6207-2RS
Price
N/A
467
SPACER
Item is no longer available
Price
N/A
468
INNER BEARING RING
Item is no longer available
Price
N/A
469
SPACER
$19.30
Enter quantity between 1 and 99
470
FLAT HD SCR M10-1.5 X 30
Price
N/A
471
PULLEY
$52.65
Enter quantity between 1 and 99
472
*DISCD*SPANNER
Item is no longer available
Price
N/A
473
BALL BEARING 6207-2RS
Price
N/A
474
INNER BEARING RING
$49.20
Enter quantity between 1 and 99
475
CAP SCREW M6-1 X 20
Price
N/A
476
RIVING KNIFE HOLDER HUB
$28.20
Enter quantity between 1 and 99
477
THREADED RETAINING RING
$3.45
Enter quantity between 1 and 99
478
RIVING KNIFE SUPPORT
$62.40
Enter quantity between 1 and 99
479
PARALLEL BAR
Item is no longer available
Price
N/A
480
Now: PN01M
HEX NUT M6-1
Price
N/A
481
Now: PN03M
HEX NUT M8-1.25
Price
N/A
482
CAP SCREW M8-1.25 X 25
Price
N/A
483
STOP
Item is no longer available
Price
N/A
484
INNER BEARING RING
$73.60
Enter quantity between 1 and 99
485
INTERMEDIATE DISC 30MM BORE
$77.30
Enter quantity between 1 and 99
485-1
INTERMEDIATE DISC 25.4MM
$155.80
Enter quantity between 1 and 99
486
FLANGE FRONT 30MM
$103.30
Enter quantity between 1 and 99
486-1
FLANGE FRONT 25.4MM
$61.60
Enter quantity between 1 and 99
487
ARBOR NUT M25-2.0
$43.50
Enter quantity between 1 and 99
488
BUSHING
$8.35
Enter quantity between 1 and 99
489
Now: PB09M
HEX BOLT M8-1.25 X 20
Price
N/A
501
Now: PN32M
HEX NUT M14-2
Price
N/A
502
FLANGE FRONT
$32.65
Enter quantity between 1 and 99
503
INNER RING
$19.00
Enter quantity between 1 and 99
504
FLANGE REAR
$33.35
Enter quantity between 1 and 99
505
CAP SCREW M6-1 X 16
Price
N/A
506
BEARING COVER
Item is no longer available
Price
N/A
507
SHAFT
$68.85
Enter quantity between 1 and 99
508
Now: PK81M
KEY 6 X 6 X 12
Price
N/A
509
BALL BEARING 6204ZZ
Price
N/A
510
INNER RING
Item is no longer available
Price
N/A
511
SCORING SAW ROCKER
Item is no longer available
Price
N/A
512
INNER RING
Item is no longer available
Price
N/A
513
PULLEY
Item is no longer available
Price
N/A
514
SPACER
Item is no longer available
Price
N/A
515
RETAINING BOLT
Item is no longer available
Price
N/A
516
O-RING 13.8 X 2.4 P14
Price
N/A
517
SUPPORT TORQUE
Item is no longer available
Price
N/A
518
DC MOTOR PLATE
Item is no longer available
Price
N/A
519
MOTOR 24VDC 31RPM
$149.40
Enter quantity between 1 and 99
520
LOCK WASHER 3MM
Price
N/A
521
CAP SCREW M3-.5 X 10
Price
N/A
522
SET SCREW M6-1 X 6
Price
N/A
523
ADJUSTMENT SPINDLE
$54.35
Enter quantity between 1 and 99
524
Now: PB07M
HEX BOLT M8-1.25 X 25
Price
N/A
525
LOCK WASHER 8MM
Price
N/A
526
BLOCK V1
$79.70
Enter quantity between 1 and 99
526V2
BLOCK V2.01.07
$56.95
Enter quantity between 1 and 99
527
PROTECTION CAP
Item is no longer available
Price
N/A
528
Now: PN13M
HEX NUT M16-2
Price
N/A
529
SET SCREW M16-2 X 60
Price
N/A
530
CODE
Item is no longer available
Price
N/A
531
Now: PN03M
HEX NUT M8-1.25
Price
N/A
532
SET SCREW M8-1.25 X 30
Price
N/A
533
Now: PN09M
HEX NUT M12-1.75
Price
N/A
534
LOCK WASHER 12MM
Price
N/A
535
SET SCREW M12-1.75 X 80
Price
N/A
536
CAP SCREW M6-1 X 25
Price
N/A
537
LOCK WASHER 6MM
Price
N/A
538
Now: PW03M
FLAT WASHER 6MM
Price
N/A
539
*DISCD*BELT GG04-16RF-875 V1
$58.70
Enter quantity between 1 and 99
539V2
BELT 15 X 690 X 1.8T V2.03.16
Item is no longer available
Price
N/A
53A
RIVING KNIFE 12" FLAT HEAD V2.04.07
Price
N/A
540
PULLEY
Item is no longer available
Price
N/A
541
SCORE BLADE MOTOR 1HP RH ELECT BOX V1
Item is no longer available
Price
N/A
541V2
SCORE BLADE MOTOR 1HP LH BOX V2.12.06
Item is no longer available
Price
N/A
542
SPACER
Item is no longer available
Price
N/A
543
AXLE
Item is no longer available
Price
N/A
544
Now: PB49M
HEX BOLT M12-1.75 X 20
Price
N/A
545
Now: PW06M
FLAT WASHER 12MM
Price
N/A
546
MOTOR PLATE
Item is no longer available
Price
N/A
547
GAS PRESSURE REGULATOR
Item is no longer available
Price
N/A
548
Now: PN03M
HEX NUT M8-1.25
Price
N/A
549
SET SCREW M6-1 X 10
Price
N/A
550
Now: PR06M
EXT RETAINING RING 16MM
Price
N/A
551
LEVER
Item is no longer available
Price
N/A
552
EYE BOLT M10-1.5 X 48
Item is no longer available
Price
N/A
553
Now: PR01M
EXT RETAINING RING 10MM
Price
N/A
554
PIN 10 X 24
Item is no longer available
Price
N/A
555
HOLDER
$34.10
Enter quantity between 1 and 99
556
Now: PW06M
FLAT WASHER 12MM
Price
N/A
557
O-RING 11.8 X 2.4 P12 
Price
N/A
558
SPACER
$8.35
Enter quantity between 1 and 99
559
ADJUSTMENT SPINDLE
$49.30
Enter quantity between 1 and 99
560
SET SCREW M12-1.75 X 40
Price
N/A
561
DC MOTOR PLATE
Item is no longer available
Price
N/A
562
CONNECTOR
Item is no longer available
Price
N/A
601
CLEANING BRUSH
Item is no longer available
Price
N/A
6011
Now: PW13M
FLAT WASHER 20MM
Price
N/A
602
CAP SCREW M6-1 X 10
Price
N/A
603
Now: PW03M
FLAT WASHER 6MM
Price
N/A
604
Now: PW02M
FLAT WASHER 5MM
Price
N/A
605
TAP SCREW #10 X 1/2
Price
N/A
606
BRUSH COVER
Item is no longer available
Price
N/A
607
STOP
Item is no longer available
Price
N/A
608
Now: PN28M
HEX NUT M20-2.5
Price
N/A
609
TELESCOPING TUBE
Item is no longer available
Price
N/A
610
SUPPORT BOLT M20-2.5 X 198
Item is no longer available
Price
N/A
612
ARM BOLT TOP M20-2.5 X 55
Item is no longer available
Price
N/A
613
BALL BEARING 6203ZZ
Price
N/A
614
BOTTOM ARM BOLT M20-2.5 X 90
Item is no longer available
Price
N/A
615
Now: PN03M
HEX NUT M8-1.25
Price
N/A
616
LOCK WASHER 8MM
Price
N/A
617
Now: PW01M
FLAT WASHER 8MM
Price
N/A
618
Now: PR37M
EXT RETAINING RING 32MM
Price
N/A
619
BALL BEARING 6002ZZ
Price
N/A
620
ROLLER PLASTIC
Price
N/A
621
CAM
Price
N/A
622
Now: PW01M
FLAT WASHER 8MM
Price
N/A
623
Now: PB20M
HEX BOLT M8-1.25 X 35
Price
N/A
624
Now: PB09M
HEX BOLT M8-1.25 X 20
Price
N/A
625
Now: PR05M
EXT RETAINING RING 15MM
Price
N/A
626
BALL BEARING 6202ZZ
Price
N/A
627
GUIDE ROLLER
$253.60
Enter quantity between 1 and 99
628
AXIS
$51.70
Enter quantity between 1 and 99
629
SWINGING ARM
Item is no longer available
Price
N/A
701
CLEANING BRUSH
$22.45
Enter quantity between 1 and 99
702
END STOP
$55.20
Enter quantity between 1 and 99
703
Now: PN03M
HEX NUT M8-1.25
Price
N/A
704
Now: PB22M
HEX BOLT M8-1.25 X 50
Price
N/A
705
PROTECTION CAP
Item is no longer available
Price
N/A
706
CAP SCREW M6-1 X 20
Price
N/A
707
SLIDING TABLE
$2,365.55
Enter quantity between 1 and 99
708
LOCK WASHER 6MM
Price
N/A
709
END STOP
Item is no longer available
Price
N/A
710
HANDLE
Item is no longer available
Price
N/A
711
Now: PN01M
HEX NUT M6-1
Price
N/A
712
LOCK WASHER 8MM
Price
N/A
713
Now: PW01M
FLAT WASHER 8MM
Price
N/A
714
Now: PR37M
EXT RETAINING RING 32MM
Price
N/A
715
BALL BEARING 6002ZZ
Price
N/A
716
ROLLER PLASTIC
$61.60
Enter quantity between 1 and 99
717
$17.25
Enter quantity between 1 and 99
718
Now: PB20M
HEX BOLT M8-1.25 X 35
Price
N/A
719
CAP SCREW M8-1.25 X 35
Price
N/A
720
ROLLER BRACKET ASSEMBLY
Price
N/A
720A
ROLLER BRACKET ASSEMBLY
$384.00
Enter quantity between 1 and 99
721
ROLLER BRACKET ASSEMBLY
Price
N/A
722
ROLLER BRACKET ASSEMBLY
Price
N/A
723
FLAT HD CAP SCR M10-1.5 X 25
Price
N/A
724
PLATE
$13.25
Enter quantity between 1 and 99
725
CARRIAGE MIDDLE
Item is no longer available
Price
N/A
726
LOCKING BAR
$31.05
Enter quantity between 1 and 99
727
PRESSURE SPRING HELICAL 12.6 X 14 X 50
$4.05
Enter quantity between 1 and 99
728
SPACER
$7.50
Enter quantity between 1 and 99
729
HEAD BUTTON
$2.75
Enter quantity between 1 and 99
730
FLAT HD CAP SCR M10-1.5 X 25
Price
N/A
731
Now: PN06M
HEX NUT M5-.8
Price
N/A
732
LOCK WASHER 5MM
Price
N/A
733
COLLECTING PIECE
Item is no longer available
Price
N/A
734
CAP SCREW M5-.8 X 35
Price
N/A
735
SLIDING TABLE SUPPORT
Item is no longer available
Price
N/A
736
STOP
Item is no longer available
Price
N/A
737
Now: PB26M
HEX BOLT M8-1.25 X 30
Price
N/A
738
PROTECT STOP
Item is no longer available
Price
N/A
739
CAP SCREW M14-2 X 40
Price
N/A
740
Now: PW10M
FLAT WASHER 14MM
Price
N/A
741
FIXED PIECE
Item is no longer available
Price
N/A
742
STOP
Item is no longer available
Price
N/A
743
CAP SCREW M8-1.25 X 16
Price
N/A
744
BUSHING
$9.20
Enter quantity between 1 and 99
745
STOP
$31.05
Enter quantity between 1 and 99
746
Now: PR03M
EXT RETAINING RING 12MM
Price
N/A
747
AXIS
$8.65
Enter quantity between 1 and 99
748
LOCK NUT M8-1.25
Price
N/A
749
RUBBER HANDLE
Item is no longer available
Price
N/A
750
SHAFT
Item is no longer available
Price
N/A
751
KNOB BOLT M8-1.25 X 30
Item is no longer available
Price
N/A
752
SET SCREW M10-1.5 X 10
Price
N/A
753
ADJUSTMENT BRACKET
Item is no longer available
Price
N/A
754
FLAT HD SCR M8-1.25 X 25
Price
N/A
755
CAP SCREW M6-1 X 30
Price
N/A
756
ROUND BAR
Item is no longer available
Price
N/A
757
INDEXING PLUNGER
Item is no longer available
Price
N/A
758
Now: PW13M
FLAT WASHER 20MM
Price
N/A
759
Now: PN28M
HEX NUT M20-2.5
Price
N/A
760
BRUSH BRACKET
Item is no longer available
Price
N/A
761
Now: PW01M
FLAT WASHER 8MM
Price
N/A
762
MITER FENCE STOP
$90.60
Enter quantity between 1 and 99
763
Now: PW04M
FLAT WASHER 10MM
Price
N/A
764
SPACER
$14.70
Enter quantity between 1 and 99
765
STAR HANDLE NUT M10-1.5
$9.70
Enter quantity between 1 and 99
766
SHAFT
$35.40
Enter quantity between 1 and 99
767
SPACER
$4.35
Enter quantity between 1 and 99
768
BUSHING
$12.95
Enter quantity between 1 and 99
769
SET SCREW M10-1.5 X 60
Price
N/A
770
CAP SCREW M6-1 X 16
Price
N/A
771
PIVOT BLOCK
$49.20
Enter quantity between 1 and 99
772
CLAMPING LEVER
Item is no longer available
Price
N/A
773
Now: PW04M
FLAT WASHER 10MM
Price
N/A
774
T-BLOCK
$4.90
Enter quantity between 1 and 99
775
MITER FENCE
Item is no longer available
Price
N/A
776
FLAT HD SCR M8-1.25 X 16
Price
N/A
777
ADJUSTMENT BRACKET SET SCREW
$357.10
Enter quantity between 1 and 99
786
LOCK NUT M8-1.25
Price
N/A
787
MITER FENCE BAR
Item is no longer available
Price
N/A
788
SLIDING TABLE LOCK ASSEMBLY
Item is no longer available
Price
N/A
801
SQUARE PLUG
Item is no longer available
Price
N/A
802
CROSS SUPPORT LONG
$69.00
Enter quantity between 1 and 99
803
SHORT CROSS-SUPPORT
Item is no longer available
Price
N/A
804
SQUARE PLUG
Item is no longer available
Price
N/A
805
FIXED PIECE
Item is no longer available
Price
N/A
806
GUIDE FENCE
Item is no longer available
Price
N/A
807
FLAT HD SCR M10-1.5 X 35
Price
N/A
808
SQUARE LOCK
Item is no longer available
Price
N/A
809
Now: PR02M
EXT RETAINING RING 14MM
Price
N/A
810
STOP TUBE
Item is no longer available
Price
N/A
811
Now: PW04M
FLAT WASHER 10MM
Price
N/A
812
Now: PB70M
HEX BOLT M10-1.5 X 16
Price
N/A
813
CROSS GLIDE
Item is no longer available
Price
N/A
814
FLAT HD SCR M8-1.25 X 16
Price
N/A
815
CLAMPING ELEMENT
Item is no longer available
Price
N/A
816
GUIDE 90DEG
$43.50
Enter quantity between 1 and 99
817
GUIDE MOUNT 90DEG
$190.25
Enter quantity between 1 and 99
818
Now: PN03M
HEX NUT M8-1.25
Price
N/A
819
Now: PB07M
HEX BOLT M8-1.25 X 25
Price
N/A
820
CAP SCREW M8-1.25 X 16
Price
N/A
821
ADJUSTMENT BOLT 90DEG M12-1.75 X 10
Item is no longer available
Price
N/A
822
Now: PB74M
HEX BOLT M10-1.5 X 20
Price
N/A
823
CROSS SLIDE SUPPORT
Item is no longer available
Price
N/A
824
RUBBER GUIDE
Item is no longer available
Price
N/A
825
Now: PB07M
HEX BOLT M8-1.25 X 25
Price
N/A
826
LOCK WASHER 8MM
Price
N/A
827
EYE BOLT M8-1.25 X 25
$6.05
Enter quantity between 1 and 99
828
SPACER
Item is no longer available
Price
N/A
829
AXIS FOR ROLLER
Item is no longer available
Price
N/A
830
BALL BEARING 6001ZZ
Price
N/A
831
ROLLER ELEMENT
Item is no longer available
Price
N/A
832
SQUARE PLUG
$3.65
Enter quantity between 1 and 99
833
CLAMPING ELEMENT
Item is no longer available
Price
N/A
834
Now: PB02M
HEX BOLT M6-1 X 12
Price
N/A
835
LOCK WASHER 6MM
Price
N/A
836
BLOCK
Item is no longer available
Price
N/A
837
Now: PR09M
EXT RETAINING RING 20MM
Price
N/A
838
ECCENTRIC SHAFT
Item is no longer available
Price
N/A
839
STUD-SE M10-1.5 X 115, 12 W/KNOB
$42.30
Enter quantity between 1 and 99
840
STUD-SE M10-1.5 X 115, 12 W/KNOB
Price
N/A
841
KNOB BOLT M8-1.25 X 50
Item is no longer available
Price
N/A
901
HELICAL PRESSURE SPRING 9 X 11 X 20
$5.50
Enter quantity between 1 and 99
902
CLAMPING PIECE
$157.30
Enter quantity between 1 and 99
903
SPACER
$15.45
Enter quantity between 1 and 99
904
*DISCD*STAR KNOB M8-1.25 FEMALE
Item is no longer available
Price
N/A
905
STOP RAIL TUBE
Item is no longer available
Price
N/A
906
CAP SCREW M8-1.25 X 90
Price
N/A
907
SUPPORT
Item is no longer available
Price
N/A
908
FLAT HD SCR M4-.7 X 16
Price
N/A
909
MAGNIFIER
$8.00
Enter quantity between 1 and 99
910
SQUARE PLUG
Item is no longer available
Price
N/A
911
CAP SCREW M8-1.25 X 16
Price
N/A
912
ROLL PIN 6 X 35
Price
N/A
913
COMPLETE CROSS FENCE ASSY
Price
N/A
913A
COMPLETE CROSS FENCE ASSY
$1,883.70
Enter quantity between 1 and 99
914
FIXED PIN
$6.05
Enter quantity between 1 and 99
915
FLAT HD SCR M6-1 X 20
Price
N/A
916
Now: PR39M
EXT RETAINING RING 8MM
Price
N/A
917
ROLLER
$20.85
Enter quantity between 1 and 99
918
CLAMPING HOLDER
$98.35
Enter quantity between 1 and 99
919
CAP SCREW M6-1 X 16
Price
N/A
920
$23.30
Enter quantity between 1 and 99
921
STUD-SE M10-1.5 X 115, 12 W/KNOB
Price
N/A
922
HEAD BUTTON
Price
N/A
923
KNOB BOLT M6-1 X 75
Item is no longer available
Price
N/A
924
SUPPORT
Item is no longer available
Price
N/A
925
PULL NAIL
Item is no longer available
Price
N/A
926
FIXED PIN
Item is no longer available
Price
N/A
927
CAP SCREW M5-.8 X 17
Price
N/A
928
PLATE
$29.35
Enter quantity between 1 and 99
929
Now: PB02M
HEX BOLT M6-1 X 12
Price
N/A
930
TAP SCREW #5 X 3/8
Price
N/A
931
COVER
Item is no longer available
Price
N/A
932
SCALE
$271.70
Enter quantity between 1 and 99
933
GUIDE PIN
Item is no longer available
Price
N/A
934
*DISCD*EXTENSION FENCE
$35.65
Enter quantity between 1 and 99
935
BLOCK
Item is no longer available
Price
N/A
936
BUSHING
Item is no longer available
Price
N/A
937
FLIP STOP BRACKET
Item is no longer available
Price
N/A
938
FLIP STOP
$43.70
Enter quantity between 1 and 99
938-1
*DISCD*COMPLETE FLIP STOP ASSY
Item is no longer available
Price
N/A
939
SET SCREW M6-1 X 10
Price
N/A
940
AXIS
Item is no longer available
Price
N/A
941
*DISCD*MAGNIFIER
$7.25
Enter quantity between 1 and 99
942
COMPLETE CROSS FENCE ASSY
Price
N/A
1001
EXTENSION TABLE V1.07.03
$306.50
Enter quantity between 1 and 99
1001A
EXTENSION TABLE V2.08.05
$276.90
Enter quantity between 1 and 99
1002
MAIN TABLE
Item is no longer available
Price
N/A
1003
SCALE
Item is no longer available
Price
N/A
1004
FLAT HD SCR M6-1 X 30
Price
N/A
1004-1
FLAT HD SCR M6-1.0 X 35
Price
N/A
1005
SCALE BRACKET
$57.25
Enter quantity between 1 and 99
1006
CAP SCREW M6-1 X 35
Price
N/A
1007
Now: PN01M
HEX NUT M6-1
Price
N/A
1008
ROLL PIN 6 X 34
Price
N/A
1010
KNOB BOLT M6-1 X 20
$3.45
Enter quantity between 1 and 99
1011
Now: PN01M
HEX NUT M6-1
Price
N/A
1012
Now: PW08M
FLAT WASHER 16MM
Price
N/A
1013
SET SCREW M16-2 X 120
Price
N/A
1014
TABLE STRIP
$199.25
Enter quantity between 1 and 99
1015
CAP SCREW M8-1.25 X 25
Price
N/A
1016
Now: PW03M
FLAT WASHER 6MM
Price
N/A
1017
LOCK WASHER 6MM
Price
N/A
1018
CAP SCREW M6-1 X 16
Price
N/A
1019
CAP SCREW M6-1 X 25
Price
N/A
1020
TABLE BRACE V1.04.06
$36.80
Enter quantity between 1 and 99
1020A
TABLE BRACE V2.03.08
$36.80
Enter quantity between 1 and 99
1021
Now: PN03M
HEX NUT M8-1.25
Price
N/A
1022
CAP SCREW M8-1.25 X 25
Price
N/A
1023
LOCK WASHER 8MM
Price
N/A
1024
Now: PW01M
FLAT WASHER 8MM
Price
N/A
1025
Now: PB29M
HEX BOLT M6-1 X 30
Price
N/A
1031
WIDTH EXTENSION TABLE V1
Item is no longer available
Price
N/A
1031A
WIDTH EXTENSION TABLE V1.08.05
Item is no longer available
Price
N/A
1032
CAP SCREW M6-1 X 25
Price
N/A
1033
LOCK WASHER 8MM
Price
N/A
1034
Now: PW01M
FLAT WASHER 8MM
Price
N/A
1035
Now: PN03M
HEX NUT M8-1.25
Price
N/A
1036
TABLE BRACE
$67.00
Enter quantity between 1 and 99
1037
Now: PW03M
FLAT WASHER 6MM
Price
N/A
1038
LOCK WASHER 6MM
Price
N/A
1039
CAP SCREW M6-1 X 16
Price
N/A
1040
Now: PN01M
HEX NUT M6-1
Price
N/A
1041
CAP SCREW M6-1 X 25
Price
N/A
1042
CAP SCREW M8-1.25 X 30
Price
N/A
1052
HOLLOW BOLT M16-2 X 55
Item is no longer available
Price
N/A
1053
Now: PN13M
HEX NUT M16-2
Price
N/A
1054
Now: PW08M
FLAT WASHER 16MM
Price
N/A
1055
HEX BOLT M6-1 X 70
Price
N/A
1056
SQUARE PLUG
Item is no longer available
Price
N/A
1057
TABLE BRACE LEFT
Item is no longer available
Price
N/A
1058
Now: PB09M
HEX BOLT M8-1.25 X 20
Price
N/A
1059
TABLE BRACE RIGHT
Item is no longer available
Price
N/A
1101
Now: PB15M
HEX BOLT M8-1.25 X 40
Price
N/A
1102
Now: PW01M
FLAT WASHER 8MM
Price
N/A
1103
CAM
Price
N/A
1104
ROLLER PLASTIC
Price
N/A
1105
BALL BEARING 6002ZZ
Price
N/A
1106
Now: PR37M
EXT RETAINING RING 32MM
Price
N/A
1107
Now: PW01M
FLAT WASHER 8MM
Price
N/A
1108
LOCK WASHER 8MM
Price
N/A
1109
SECTION TOP
Item is no longer available
Price
N/A
1110
CLAMPING PLATE CAM
Item is no longer available
Price
N/A
1111
KNOB
Item is no longer available
Price
N/A
1112
ROUND KNOB FEMALE
Price
N/A
1113
KNOB BOLT M10-1.5 X 40
Item is no longer available
Price
N/A
1114
CAP SCREW M6-1 X 10
Price
N/A
1115
SCRAPER
Item is no longer available
Price
N/A
1116
RIP FENCE BLOCK LOWER
Item is no longer available
Price
N/A
1117
ROLL PIN 6 X 30
Price
N/A
1118
ELEVATION CAM
Item is no longer available
Price
N/A
1119
BAR M16-1.5 X 80
Item is no longer available
Price
N/A
1120
Now: PW04M
FLAT WASHER 10MM
Price
N/A
1121
SUPPORT
Item is no longer available
Price
N/A
1122
GRIP
Item is no longer available
Price
N/A
1123
SET SCREW M5-.8 X 10
Price
N/A
1124
STEEL BALL 1/4
Price
N/A
1125
HELICAL PRESSURE SPRING 4.9 X 6 X 28
Item is no longer available
Price
N/A
1126
SET SCREW M20-2.5 X 120
Price
N/A
1127
Now: PN28M
HEX NUT M20-2.5
Price
N/A
1128
ROUND BAR
$373.20
Enter quantity between 1 and 99
1129
CAM
Item is no longer available
Price
N/A
1130
ROLLER
$16.35
Enter quantity between 1 and 99
1131
Now: PR02M
EXT RETAINING RING 14MM
Price
N/A
1132
Now: PB04M
HEX BOLT M6-1 X 10
Price
N/A
11321V3-1
OL RELAY TECO RHN-10K 12.5-18A V3.09.08
Price
N/A
11321V3-2
OL RELAY TECO RHN-10K 1.4-2.1A V3.09.08
Price
N/A
1133
STOP
Item is no longer available
Price
N/A
1134
SPACER
Item is no longer available
Price
N/A
1135
FLAT HD SCR M5-.8 X 12
Price
N/A
1136
RIP FENCE
$536.15
Enter quantity between 1 and 99
1137
FLAT HD SCR M6-1 X 20
Price
N/A
1138
CLAMPING STRIP
Item is no longer available
Price
N/A
1139
CLAMP
$32.05
Enter quantity between 1 and 99
1140
HEX BOLT M5-.8 X 12
Price
N/A
1141
Now: PW13M
FLAT WASHER 20MM
Price
N/A
1142
Now: PN03M
HEX NUT M8-1.25
Price
N/A
1143
Now: PR09M
EXT RETAINING RING 20MM
Price
N/A
1201
SUPPORT ARM
$194.65
Enter quantity between 1 and 99
1202
Now: PN03M
HEX NUT M8-1.25
Price
N/A
1203
LOCK WASHER 8MM
Price
N/A
1204
CAP SCREW M8-1.25 X 35
Price
N/A
1205
Now: PW01M
FLAT WASHER 8MM
Price
N/A
1206
STOP
$13.80
Enter quantity between 1 and 99
1207
Now: PB20M
HEX BOLT M8-1.25 X 35
Price
N/A
1208
Now: PB32M
HEX BOLT M10-1.5 X 25
Price
N/A
1209
LOCK WASHER 10MM
Price
N/A
1210
Now: PW04M
FLAT WASHER 10MM
Price
N/A
1211
SUPPORT ARM FRAME
$100.65
Enter quantity between 1 and 99
1212
Now: PB01M
HEX BOLT M10-1.5 X 30
Price
N/A
1213
HEAD BUTTON
Price
N/A
1213-1
BRACKET V2.07.03
$46.30
Enter quantity between 1 and 99
1216
CAP SCREW M8-1.25 X 16
Price
N/A
1217
Now: PN04M
HEX NUT M4-.7
Price
N/A
1218
ROLLER BRACKET
$18.40
Enter quantity between 1 and 99
1219
LOCK NUT M10-1.5
Price
N/A
1220
CAP SCREW M4-.7 X 30
Price
N/A
1221
ROLLER
$11.25
Enter quantity between 1 and 99
1222
CAP SCREW M6-1 X 10
Price
N/A
1223
Now: PB76M
HEX BOLT M12-1.75 X 110
Price
N/A
1224
Now: PW06M
FLAT WASHER 12MM
Price
N/A
1225
Now: PB74M
HEX BOLT M10-1.5 X 20
Price
N/A
1226
FIXED PLATE
$41.10
Enter quantity between 1 and 99
1227
HEX BOLT M10-1.5 X 120
Price
N/A
1228
BUSHING
$23.60
Enter quantity between 1 and 99
1229
LOCK WASHER 5MM
Price
N/A
1230
HEX BOLT M5-.8 X 12
Price
N/A
1231
GROOVED PIN WITH RR
$26.20
Enter quantity between 1 and 99
1232
COVER
$9.50
Enter quantity between 1 and 99
1233
PULL SPRING 12 X 1.4MM
$2.60
Enter quantity between 1 and 99
1234
Now: PB82M
HEX BOLT M8-1.25 X 80
Price
N/A
1235
PULL SPRING 11 X 1.5MM
$2.90
Enter quantity between 1 and 99
1236
HEX BOLT M16-2 X 120
Price
N/A
1237
Now: PW08M
FLAT WASHER 16MM
Price
N/A
1238
FIXED PLATE
$37.40
Enter quantity between 1 and 99
1239
BUSHING
$22.45
Enter quantity between 1 and 99
1240
Now: PN13M
HEX NUT M16-2
Price
N/A
1241
CONNECTOR
$149.80
Enter quantity between 1 and 99
1242
CAP SCREW M8-1.25 X 25
Price
N/A
1243
Now: PR09M
EXT RETAINING RING 20MM
Price
N/A
1244
BALL KNOB
$22.45
Enter quantity between 1 and 99
1245
ROUND KNOB FEMALE
Price
N/A
1246
CONNECTING ARM
$149.80
Enter quantity between 1 and 99
1247
Now: PB03M
HEX BOLT M8-1.25 X 16
Price
N/A
1248
WIRE FIXED BLOCK
$8.35
Enter quantity between 1 and 99
1249
$4.90
Enter quantity between 1 and 99
1250
CAP SCREW M6-1 X 16
Price
N/A
1251
CAP SCREW M6-1 X 16
Price
N/A
1252
GUIDE
$16.40
Enter quantity between 1 and 99
1253
ROLLER
$4.90
Enter quantity between 1 and 99
1254
CONNECTOR
$22.45
Enter quantity between 1 and 99
1255
Now: PN09M
HEX NUT M12-1.75
Price
N/A
1256
CONNECTOR
$108.70
Enter quantity between 1 and 99
1257
KNOB FEMALE M10-1.5
$3.45
Enter quantity between 1 and 99
1258
BUSHING
$14.70
Enter quantity between 1 and 99
1259
ROLL PIN 6 X 35
Price
N/A
1260
CONNECTOR
$61.55
Enter quantity between 1 and 99
1261
CAP SCREW M6-1 X 12
Price
N/A
1262
AXIS
$26.20
Enter quantity between 1 and 99
1263
BLOCK
$60.95
Enter quantity between 1 and 99
1264
Now: PR03M
EXT RETAINING RING 12MM
Price
N/A
1265
RING
$8.35
Enter quantity between 1 and 99
1266
GUIDE BLOCK
Item is no longer available
Price
N/A
1267
WIRE
Item is no longer available
Price
N/A
1268
BLOCK
$8.95
Enter quantity between 1 and 99
1269
CAP SCREW M5-.8 X 20
Price
N/A
1270
DUST HOOD
$57.50
Enter quantity between 1 and 99
1271
COVER
$29.65
Enter quantity between 1 and 99
1272
HANDLE
$23.30
Enter quantity between 1 and 99
1273
LOCK WASHER 6MM
Price
N/A
1274
AXIS
$27.55
Enter quantity between 1 and 99
1275
ROLLER
$30.20
Enter quantity between 1 and 99
1276
ROLLER BRACKET
$20.30
Enter quantity between 1 and 99
1277
WIDE BLADE GUARD
Price
N/A
1278
Now: PW02M
FLAT WASHER 5MM
Price
N/A
1279
UNPLUG 220V/BLADES 2W X 3.3H
Price
N/A
1280
SAFETY GLASSES 2W X 3.3H V2.04.08
Price
N/A
1281
BLADE/KNIFE GUARD LABEL
$2.25
Enter quantity between 1 and 99
1301
*DISCD*DIGITAL CONTROL DISPLAY DP-525
Item is no longer available
Price
N/A
1302
ARBOR RPM DISPLAY
Item is no longer available
Price
N/A
1303
BUTTON IC PLATE
$148.55
Enter quantity between 1 and 99
1304
ON BUTTON JC01 250V 6A 4P V1.07.03
$32.65
Enter quantity between 1 and 99
1304V2
ON BUTTON 10A 250V MAX V2.10.07
Item is no longer available
Price
N/A
1305
OFF BUTTON JC01 250V 6A 2P
$18.15
Enter quantity between 1 and 99
1306
E-STOP BUTTON 250V 10A
$54.35
Enter quantity between 1 and 99
1307
COMMUTATOR KBPC2506
$7.90
Enter quantity between 1 and 99
1308
POWER SUPPLY OUTPUT 0V-12V
Item is no longer available
Price
N/A
1309
MAGNETIC CONTACTOR CN11 220V NOR CLOSE
$56.65
Enter quantity between 1 and 99
1309-1
MAGNETIC CONTACTOR CN-11 NC/NO SET
Price
N/A
1309A
MAGNETIC CONTACTOR CN-11 NC/NO SET
Item is no longer available
Price
N/A
1310
RELAY FMY2-TN AC220/240
$33.25
Enter quantity between 1 and 99
1310-1
BASE FOR RELAY
Item is no longer available
Price
N/A
1311
RELAY OMRON MY2NJ LY 4NT 200/220V 5A
$41.70
Enter quantity between 1 and 99
1312
FUSE 3A
$3.80
Enter quantity between 1 and 99
1313
TRANSFORMER 200VA 220/440-15/220V V2
$210.15
Enter quantity between 1 and 99
1313A
TRANSFORMER 200VA 220/440V-15/220V V1
Item is no longer available
Price
N/A
1314
MAGNETIC CONTACTOR CU-27
Price
N/A
1314V2
MAGNETIC CONTACTOR CU-27
$78.50
Enter quantity between 1 and 99
1315
OL RELAY RHU-10K/30K2
Price
N/A
1315V2
OL RELAY RHU-10K/30K2
Item is no longer available
Price
N/A
1316
OL RELAY RH-10E/3C
$26.60
Enter quantity between 1 and 99
1317
POWER SELECTOR SWITCH 220V
Item is no longer available
Price
N/A
1318
TERMINAL STRIP 1 X 4
Item is no longer available
Price
N/A
1318-1
Now: PS52M
PHLP HD SCR M4-.7 X 20
Price
N/A
1319
TERMINAL STRIP 1 X 35
Item is no longer available
Price
N/A
1320
*DISCD*CONTROL PANEL FACE
Item is no longer available
Price
N/A
1321
CONVERSION KIT 440V V1.06.03
$98.35
Enter quantity between 1 and 99
1321A
SCORING MOTOR OVERLOAD RELAY
$37.95
Enter quantity between 1 and 99
1321B
CONVERSION KIT 440V 2 RELAY V3.09.08
$122.30
Enter quantity between 1 and 99
1321V3-1
OL RELAY TECO RHN-10K 12.5-18A V3.09.08
Item is no longer available
Price
N/A
1321V3-2
OL RELAY TECO RHN-10K 1.4-2.1A V3.09.08
Item is no longer available
Price
N/A
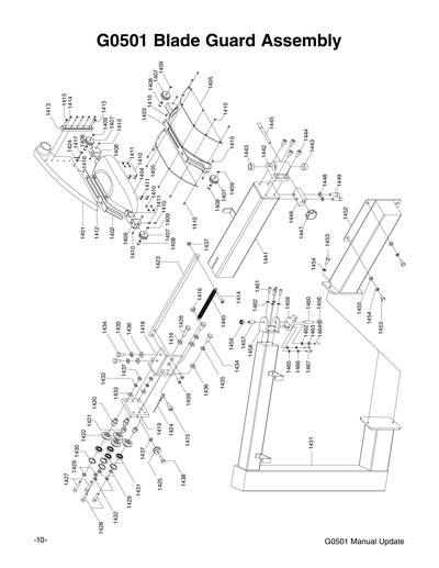
1400
*DISCD*BLADE GUARD ASSEMBLY
Item is no longer available
Price
N/A
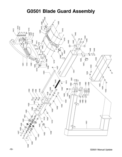
1401
DUST PORT
Item is no longer available
Price
N/A
1402
HANDLE
Item is no longer available
Price
N/A
1403
NARROW BLADE GUARD FRAME
Item is no longer available
Price
N/A
1404
WIDE BLADE GUARD
$224.60
Enter quantity between 1 and 99
1405
NARROW BLADE GUARD COVER
$47.10
Enter quantity between 1 and 99
1406
ROLLER BRACKET
Item is no longer available
Price
N/A
1407
ROLLER
$29.00
Enter quantity between 1 and 99
1408
AXLE
Item is no longer available
Price
N/A
1409
Now: PR03M
EXT RETAINING RING 12MM
Price
N/A
1410
BUTTON HD CAP SCR M6-1 X 10
Price
N/A
1411
Now: PW03M
FLAT WASHER 6MM
Price
N/A
1412
Now: PB09M
HEX BOLT M8-1.25 X 20
Price
N/A
1413
SMOOTH RAIL
Item is no longer available
Price
N/A
1414
CAP SCREW M6-1 X 30
Price
N/A
1415
CAP SCREW M8-1.25 X 16
Price
N/A
1416
Now: PN03M
HEX NUT M8-1.25
Price
N/A
1417
CAP SCREW M8-1.25 X 30
Price
N/A
1418
BRACKET
Item is no longer available
Price
N/A
1419
ROLLER BLOCK
Item is no longer available
Price
N/A
1420
STATIONARY AXLE
Item is no longer available
Price
N/A
1421
ADJUSTABLE AXLE
Item is no longer available
Price
N/A
1422
ROLLER
Item is no longer available
Price
N/A
1423
STEEL PLATE
Item is no longer available
Price
N/A
1424
STEEL ROPE
$74.30
Enter quantity between 1 and 99
1425
ROLLER
Item is no longer available
Price
N/A
1426
BRACKET BOLT M8-1.25
Item is no longer available
Price
N/A
1427
CAP SCREW M6-1 X 35
Price
N/A
1428
CAP SCREW M6-1 X 25
Price
N/A
1429
Now: PW03M
FLAT WASHER 6MM
Price
N/A
1430
Now: PR57M
INT RETAINING RING 22MM
Price
N/A
1431
BALL BEARING 6900ZZ
Price
N/A
1432
LOCK WASHER 6MM
Price
N/A
1433
Now: PW03M
FLAT WASHER 6MM
Price
N/A
1434
Now: PB03M
HEX BOLT M8-1.25 X 16
Price
N/A
1435
LOCK WASHER 8MM
Price
N/A
1436
Now: PW01M
FLAT WASHER 8MM
Price
N/A
1437
Now: PN01M
HEX NUT M6-1
Price
N/A
1438
Now: PB08M
HEX BOLT M6-1 X 20
Price
N/A
1439
FLAT HD SCR M6-1 X 12
Price
N/A
1440
TENSION SPRING
Item is no longer available
Price
N/A
1441
CONNECTING ARM
Item is no longer available
Price
N/A
1442
CONNECTOR
Item is no longer available
Price
N/A
1443
BUSHING
$11.85
Enter quantity between 1 and 99
1444
CAP SCREW M8-1.25 X 16
Price
N/A
1445
LOCK AXLE
$11.50
Enter quantity between 1 and 99
1446
BRACKET
Item is no longer available
Price
N/A
1447
STAR KNOB
Item is no longer available
Price
N/A
1448
LOCK WASHER 8MM
Price
N/A
1449
CAP SCREW M8-1.25 X 30
Price
N/A
1451
SUPPORT ARM UPPER
Item is no longer available
Price
N/A
1452
SUPPORT LOWER ARM
$237.80
Enter quantity between 1 and 99
1453
Now: PB74M
HEX BOLT M10-1.5 X 20
Price
N/A
1454
LOCK WASHER 10MM
Price
N/A
1455
Now: PW04M
FLAT WASHER 10MM
Price
N/A
1456
LOCK NUT M12-1.75
Price
N/A
1457
AXLE
Item is no longer available
Price
N/A
1458
BRACKET
Item is no longer available
Price
N/A
1459
ADJUSTMENT BLOCK
$29.35
Enter quantity between 1 and 99
1460
AXLE
Item is no longer available
Price
N/A
1461
CAP SCREW M8-1.25 X 16
Price
N/A
1462
LOCK WASHER 8MM
Price
N/A
1463
Now: PN03M
HEX NUT M8-1.25
Price
N/A
1464
SET SCREW M8-1.25 X 25
Price
N/A
1465
Now: PW03M
FLAT WASHER 6MM
Price
N/A
1466
LOCK WASHER 6MM
Price
N/A
1467
CAP SCREW M6-1 X 25
Price
N/A
181
TERMINAL BLOCK
Item is no longer available
Price
N/A
222
CAP SCREW M8-1.25 X 25
Price
N/A
256
CONNECTOR
Item is no longer available
Price
N/A
943
Now: PW16
FLAT WASHER #6
Price
N/A
944
SUPPORT BLOCK FRONT
Item is no longer available
Price
N/A
945
SCREW #6
Item is no longer available
Price
N/A
BOX2
COMPLETE FENCE ASSY BOX 2
Item is no longer available
Price
N/A
MANUAL
MANUAL FOR G0501 07/03
$14.65
Enter quantity between 1 and 99