Parts for G4019 Arbor Press - 2 Ton

Parts Diagrams for G4019 - Arbor Press - 2 Ton

IMPORTANT

Parts may have multiple versions that have changed over time. This will be indicated by V1, V2, V3, etc. in the parts description, followed by the version month and year that it was first used. Example: V2.01.17 indicates version 2 of a part went into use in January 2017. Please reference the manufacture date on the ID Label for your machine to ensure you are selecting the correct part when multiple versions are indicated.

If you cannot locate your part below, please contact our tech support department at techsupport@grizzly.com or 570-546-9663.

Please note: All parts ship out of our Springfield, Missouri facility.

Parts List for Parts for G4019 Arbor Press - 2 Ton

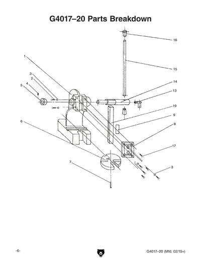
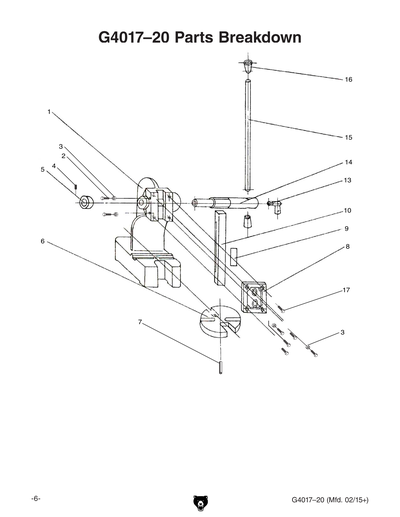
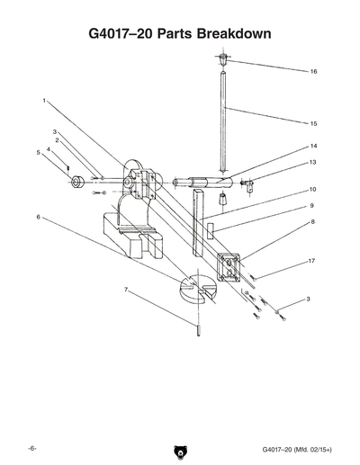
1
BODY
Item is no longer available
Price
N/A
2
Now: PB14M
HEX BOLT M10-1.5 X 35
Price
N/A
3
Now: PN02M
HEX NUT M10-1.5
Price
N/A
4
SET SCREW M8-1.25 X 10
Price
N/A
5
COLLAR
$1.49
Enter quantity between 1 and 99
6
*DISCD*BASEPLATE
Item is no longer available
Price
N/A
7
ROLL PIN 6 X 20
Price
N/A
8
COVER
$4.35
Enter quantity between 1 and 99
9
TENSIONING PLATE
$1.49
Enter quantity between 1 and 99
10
*DISCD*RAM
$40.65
Enter quantity between 1 and 99
11
LOCK PIN
Item is no longer available
Price
N/A
12
PIN
Item is no longer available
Price
N/A
13
LOCK HANDLE ASSEMBLY M10-1.5
$1.49
Enter quantity between 1 and 99
14
*DISCD*PINION HUB
$40.65
Enter quantity between 1 and 99
15
SLIDING HANDLE
$11.25
Enter quantity between 1 and 99
16
HANDLE CAP
$1.49
Enter quantity between 1 and 99
17
*DISCD*HEX BOLT M8-1.25 X 25
Item is no longer available
Price
N/A
18
HANDLE CAP
Price
N/A
100
CARTON FOR G4019
Item is no longer available
Price
N/A
MAN
MANUAL G4017-20 MFD-06.15 V1.06.15
Price
N/A